オフィスレイアウト
<オフィスレイアウト>
今、お使いのオフィスのレイアウト変更をお手伝いします。
機能的で無駄のないオフィスレイアウトに変更したいが、「何から始めればいいの」という声をよく聞きます。
今ある什器を最大限に利用して、御社の目的に合った理想のオフィスレイアウトをご提案いたします。
内装工事もオフィスい家具もいっしょにご提案いたします。
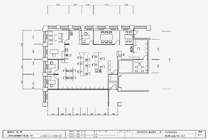
オフィスレイアウトのプランニングで大切なことは、ゾーニング計画と動線計画です。
快適なオフィス作りには絶対条件です。
ゾーニング計画とは
オフィスに必要なスペースを大まかに区分けすることです。
例えば、エントランス、執務スペース、応接室、会議室等のスペースをリストアップして、各部署ごとに関連性を考慮してプランニングすることです。
動線計画とは
オフィス内の通路のことです。
メインの動線を決めて、なるべく余分な動線をなくすように考えることが大切です。動線はあくまでもシンプルに。
御社のご要望、条件に合ったオフィスプランニングをご提案します。




HOME


